CLUB HOUSE
SPRINGFIELDS 17000sqft. exorbitant CLUB HOUSE is designed true to its purpose.Its exterior reflects a material palette similar to all the villas i.e. earthy, rugged and natural with a perfect blend of modernaesthetics, large overhangs, glass facades and landscaped screens to create that interest as one enters.
CLUB HOUSE
POOLSIDE CAFE & SWIMMING POOL
A covered porch on the wooden deck with tables set out to unwind andrelax overlooking the swimming pool.
ENTRANCE
Exposed brick facade designed uniquely to screen off the swimming pool from the outside providing a sense of privacy andexclusivity
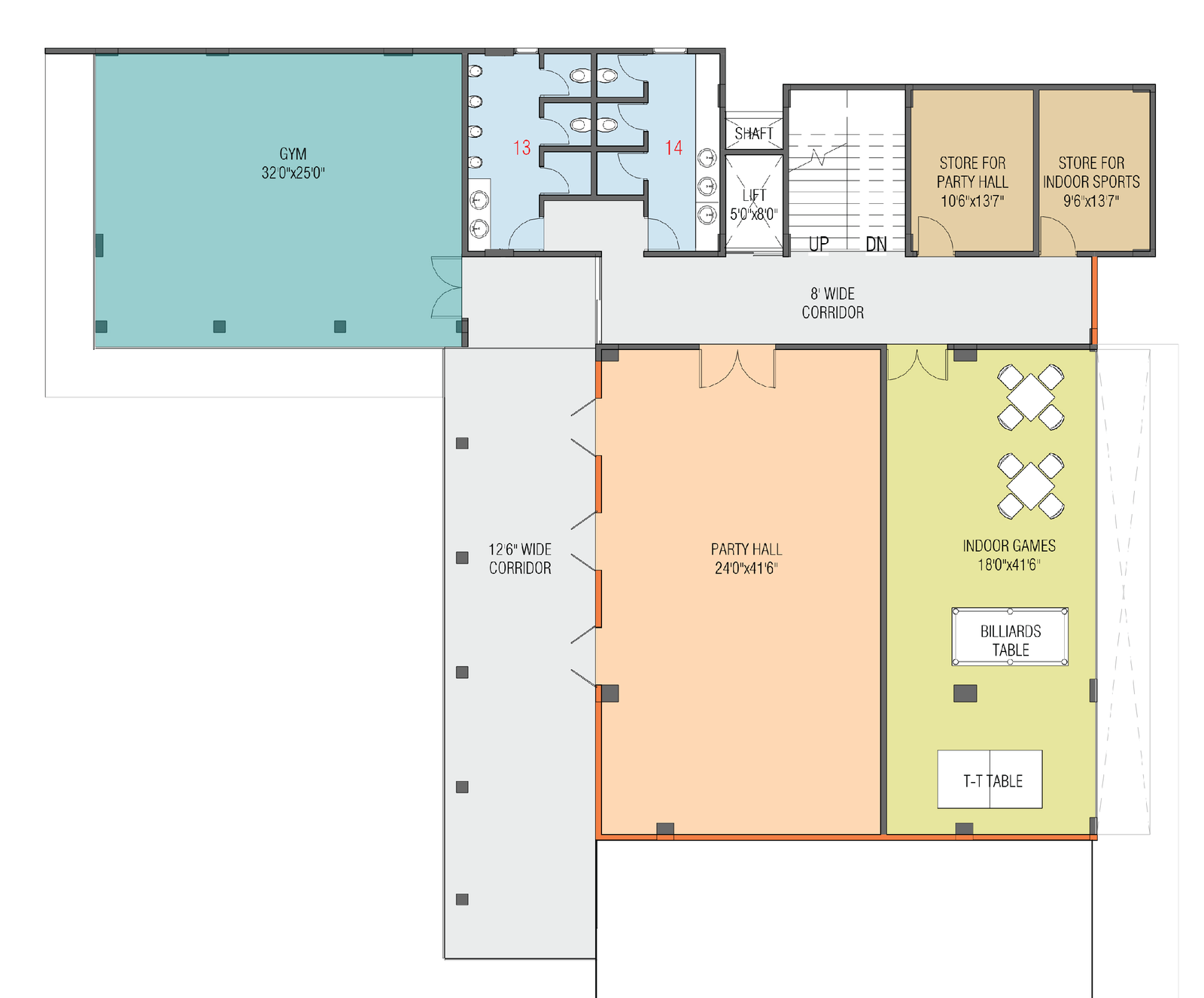
GYM
In-house gym facilities for the fitness enthusiasts that looks out into the pool below.
CLUB HOUSE
- 1. COMMONTOILET - 10'0"x11'0"
- 2. TOILET FOR HANDICAPPED - 7'0"x6'6"
- 3. STAFF TOILET - 5'0"x5'0"
- 4. STAFF TOILET - 4'6"x5'0"
- 5. MEN'S TOILET/CHANGING RM- 20'0"x10'0"
- 6. WOMEN'S TOILET/CHANGING RM. -15'6"x10'0"
- 7.GIRLS' CHANGING AND TOILETS
- 8. LOCKER SPACE
- 4. WIDE SERVICE ROAD
- 9. BOYS' CHANGING AND TOILETS
- 10. STORE/PUMP ROOM
- 11. SUMP TANK
- 12. OUT-DOOR-SHOWER AREA






